Property Details
A rare opportunity on the doorstep of Waverley Charing Cross village, this entire Art Deco apartment block is offered for sale in one line presenting a unique opportunity for investors and wealth creators. Equally, it provides an outstanding prospect for home plus income seekers, or those looking to secure their family's future within the Eastern Suburbs (including potential strata subdivision subject to Council approval).
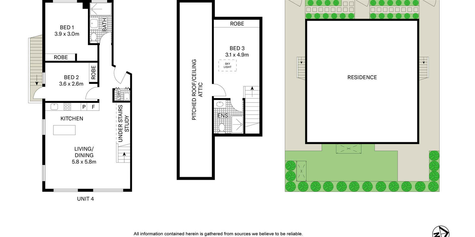
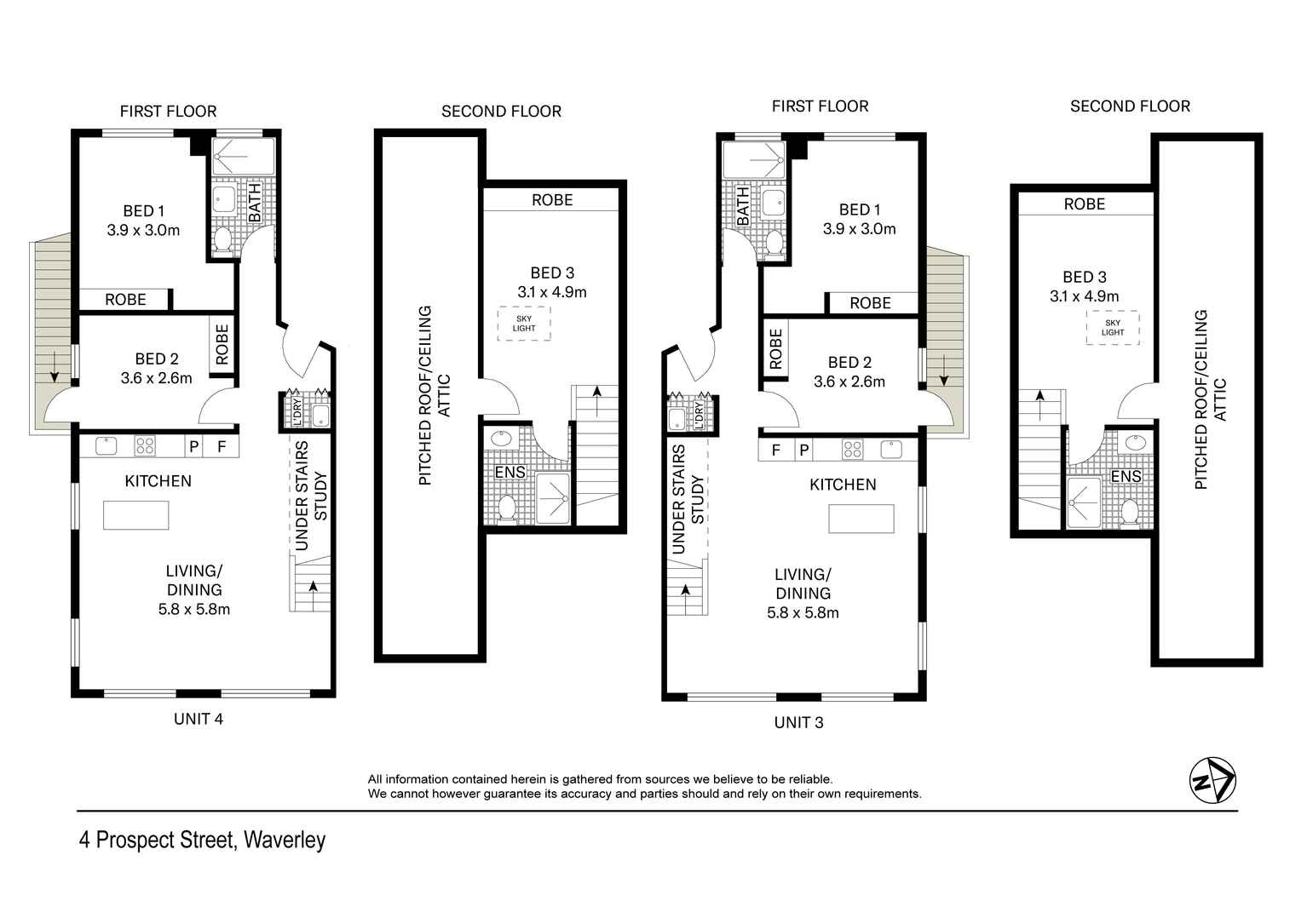
All four apartments are generously sized and offer expansive floorplans more commonly found in semi-detached homes. Featuring water views throughout, the apartments provide a perfect combination for a prime coastal village setting.
The solid double-brick block is in excellent condition with various renovation works carried out in recent years, together with the newly completed re-painting of all external areas as well as internal foyers.
The block is fully tenanted with further scope for rental levels to be increased to meet current market levels.
With an endless list of positive attributes, as summarised below, this asset is truly a "blue-chip investment".
Key property features:
• 2x 2 bedroom apartments
• 2x 2 bedroom apartments plus attics
• Land size 348m2 approximately
• 15.5m frontage approximately
Further property attributes:
• 4x renovated semi-like apartments with water views
• Tastefully appointed, light and airy interiors
• All with Juliet-style balcony landings attached to external stairs
• Common storage room with additional laundry facilities
• Spacious living rooms
• Internal laundries
• Renovated eat-in kitchens with gas appliances
• Modern bathrooms
• Solid rental history with low vacancy - fully tenanted with scope to increase rentals
Prime location, being approximately:
• Within metres of the exclusive Charing Cross shopping village Waverley
• Within metres of bustling cafes, deli's, bars, eateries, shops and bus stops
• 350m to Queens Park
• 800m to Bronte Park
• 900m to Waverley College
• 1.2km to Bronte Beach
DISCLAIMER: Every precaution has been taken to establish accuracy of the above information but does not constitute any representation by the vendor or agent. Prospective purchasers are urged to rely on their own enquiries.
Land area
348 sqm (approx)
Building size
300 sqm (approx)














































