Property Details
This substantive freestanding property is a former Gothic Victorian Church, complete with soaring ceilings, immense open plan space, large first floor gallery, private rooms with high ceilings, beautiful period masonry, historic architectural features, beautiful stained glass windows, and amenities.
Perfect opportunity for a unique business to take advantage of an excellent Sydney CBD fringe location surrounded by Residential & Commercial buildings, and the trendiest bars, restaurants and cafes.
Summary of features include:
- Whole building For Lease opportunity consisting of a substantial heritage listed 1872 constructed Gothic Victorian former church building
- Zoning: B4 Mixed Use
- 300m from Redfern station
- Three street frontages - Regent Street, Margaret Street, and William Lane
- Located amongst the growing high density Regent St Precinct
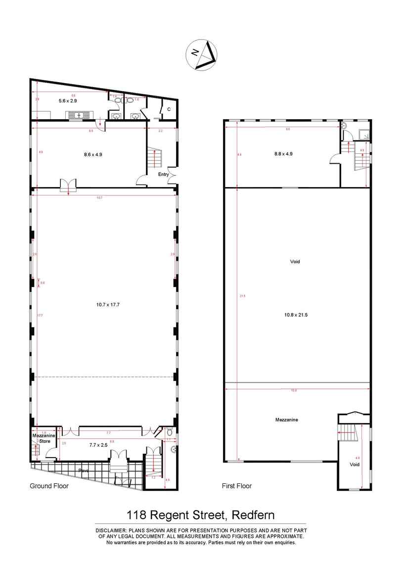
- Substantial ground floor main hall with soaring ceilings
- Grand upper level mezzanine gallery floor
- Separate private hall incorporating large private first floor area with high cathedral ceiling, separate kitchen and amenities.
- Male & Female amenities
- Land area: 360m2
- Building area comprises site area plus large gallery/mezzanine and additional first floor private hall.
- Long term lease available
- Flexible lease structure
Indicatively may become available circa April 2025 - date to be confirmed.
Please do not hesitate to contact Matthew Markakis or Anthony Markakis to discuss further:
Matthew Markakis
0418 452 806
matthew@rwnewtown.com.au
Anthony Markakis
0419 608 408
anthony@rwnewtown.com.au
Land area
360 sqm (approx)
Building size
442 sqm (approx)




























































